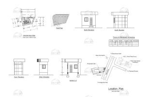
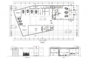
Joshi Automobiles

Joshi Automobiles

  • Location: Samakhusi
  • Role: Architectural design and 3D
  • Employer: Pradip Joshi
  • Estimated Time: n/a