Survey of Harihar Temple
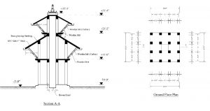
Carried out a detailed survey of Harihar temple premises. and designed hawan kunda.

Carried out a detailed survey of Harihar temple premises. and designed hawan kunda.

Get more details on our service.